Dwupoziomowy Apartament Premium, 3 Tarasy, Kraków

Mieszkanie na sprzedaż
4 344 600,00 PLN , Pow. 174,90 m2
Drukuj ofertę
Drukuj ofertę
Typ nieruchomości:
Mieszkanie
Powierzchnia:
174,90 m2
Typ transakcji:
sprzedaż
Liczba pokoi:
6
Lokalizacja:
Kraków Prądnik Czerwony , Mogilska
Rok budowy:
2028
Piętro:
13 na 14
Numer oferty:
484462
Cena za m2:
24 840,48 PLN
Nowoczesna inwestycja w Krakowie, wyróżniająca się oryginalną architekturą, wysokim standardem oraz komfortowymi warunkami do życia w dobrze skomunikowanej części miasta.
Zakup od dewelopera, bez 2% podatku PCC i prowizji.

Atuty inwestycji:
- Projekt wyróżnia się nowoczesną, industrialną architekturą inspirowaną historią miejsca, a wysokie przeszklenia, tarasy, balkony i loggie podkreślają jego loftowy oraz miejski charakter.
- System Smart Home w standardzie umożliwia wygodne zarządzanie wybranymi funkcjami mieszkania oraz wspiera codzienny komfort użytkowania.
- Starannie zaprojektowane części wspólne, w tym zielone patio oraz lobby z mini-galerią sztuki, które podnoszą komfort codziennego życia mieszkańców.
- Położenie inwestycji zapewnia szybki dostęp do centrum, komunikacji tramwajowej i autobusowej, a także terenów rekreacyjnych, obiektów sportowych, sklepów, restauracji i punktów usługowych.

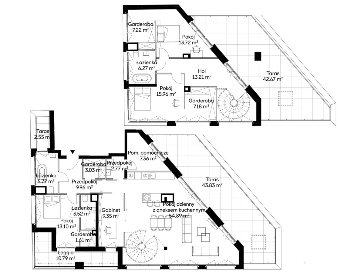
Układ mieszkania:
PIĘTRO 13
- pokój dzienny z aneksem kuchennym,
- sypialnia z łazienką i garderobą,
- łazienka,
- gabinet,
- garderoba,
- pomieszczenie pomocnicze,
- przedpokój,
- loggia,
- 2 tarasy.

PIĘTRO 14
- 2 pokoje,
- 2 garderoby,
- łazienka,
- przedpokój,
- taras.

Dodatkowe informacje:
Miejsce postojowe w hali garażowej: od 76 000 PLN
Komórka lokatorska: od 45 000 PLN

Piętro: 13 i 14 / 14
Liczba pokoi: 6
Termin realizacji inwestycji: 2Q2028

W razie jakichkolwiek pytań zachęcamy do kontaktu pod podany niżej numer.
Serdecznie zapraszamy na prezentacje inwestycji!

Osoba do kontaktu: Dawid Dragan
Tel. +48 733 266 466

Powyższa oferta ma charakter informacyjny i nie stanowi oferty handlowej w rozumieniu art. 66 §1 Kodeksu Cywilnego.
Nieprawidłowy adres E-mail