Dom z Ogrodem w Cichej Okolicy, Warszawa Wawer

Dom (Segment skrajny) na sprzedaż
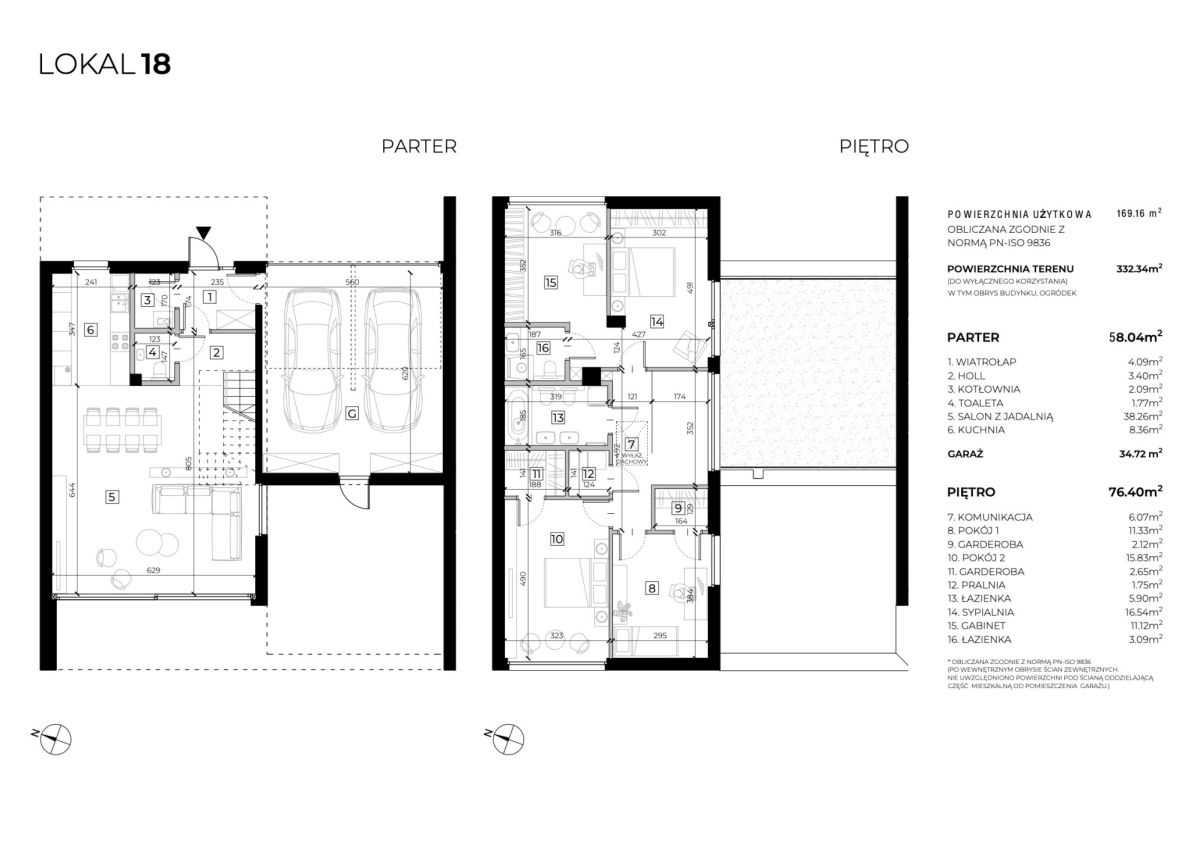
2 888 800,00 PLN , Pow. 169,16 m2
Drukuj ofertę
Drukuj ofertę
Typ nieruchomości:
Dom
Powierzchnia:
169,16 m2
Typ transakcji:
sprzedaż
Liczba pokoi:
5
Lokalizacja:
Warszawa Wawer , Poprawna
Rok budowy:
2026
Liczba pięter:
2
Numer oferty:
817534
Powierzchnia działki:
332,34 m2
Cena za m2:
17 077,32 PLN
Nowoczesne domy w spokojnym otoczeniu oferują prywatność, przemyślane układy oraz ogród i taras, zapewniając wygodę blisko miasta.
Zakup od dewelopera, bez 2% podatku PCC i prowizji.

Atuty inwestycji:
- Nowoczesna architektura oraz aluminiowe okna z dużymi przeszkleniami zapewniają jasne, dobrze doświetlone wnętrza.
- Każdy dom posiada ogród i taras, które tworzą komfortową przestrzeń do wypoczynku na zewnątrz.
- Spokojna okolica oraz przystanki autobusowe w pobliżu ułatwiają codzienne funkcjonowanie, a odległość od centrum ok. 8,9 km łączy ciszę z wygodnym dojazdem do miasta.
- Inwestycja oferuje gniazdka do ładowania aut elektrycznych oraz możliwość montażu paneli fotowoltaicznych.

Układ domu:
PARTER
- salon z jadalnią,
- kuchnia,
- toaleta,
- przedpokój,
- garaż
- taras z ogrodem.

PIĘTRO 1
- 3 sypialnie,
- 2 łazienki,
- gabinet,
- 2 garderoby,
- pralnia,
- przedpokój.

Liczba pokoi: 5
Termin realizacji inwestycji: 4Q2026

W razie jakichkolwiek pytań zachęcamy do kontaktu pod podany niżej numer.
Serdecznie zapraszamy na prezentacje inwestycji!

Osoba do kontaktu: Dawid Dragan
Tel. + 48 733 266 466

Powyższa oferta ma charakter informacyjny i nie stanowi oferty handlowej w rozumieniu art. 66 §1 Kodeksu Cywilnego.
Nieprawidłowy adres E-mail